雙梁橋式起重機就是主梁是兩根梁,而葫蘆單梁橋式起重機的主梁是一根梁,二者外觀結構區別很明顯。

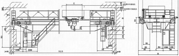
礦山起重機械、橋式起重機廠家講解本產品:QD50/10噸吊鉤橋式起重機也叫做行吊、行車、航吊、桁吊、天車,主要由雙主梁、單小車、電器系統,分設主鉤和副鉤,主要由橋架、大車運行機構、卷揚式起重小車、電器設備等組成,起重小車由卷筒、電機、減速機、制動器、電器組成。卷筒上的鋼絲繩直接下來纏繞在吊鉤組上,取物裝置是吊鉤。
qd型雙梁橋式起重機有:5噸雙梁橋式起重機、10噸雙梁橋式起重機、16噸雙梁橋式起重機、20噸雙梁橋式起重機、32噸雙梁橋式起重機、50噸雙梁橋式起重機、75噸雙梁橋式起重機、100噸雙梁橋式起重機、120噸、150噸、200噸、350 噸、400噸等行車。
比歐式橋式起重機便宜,用量較大。
根據使用頻繁程度不同,分為A5、A6二種工作級別,也有慢速A3。
QD型雙梁橋式起重機比LH型電動葫蘆雙梁橋式起重機耐用的多。
該起重機動作操縱全部在司機室內完成。礦山起重機價格合理,質量好,歡迎選購
注:H0≤250為大車緩沖器增加的高度。






