
QD75/20噸雙梁橋式起重機技術參數:
| 技術參數 Technological parameter | ||||||||||||||||||||||||
| 起重量Lifting Weight | t | 75/20 | 75/20 | 75/20 | ||||||||||||||||||||
| 跨度Span | m | 13.5 | 16.5 | 19.5 | 22.5 | 25.5 | 28.5 | 31.5 | 13.5 | 16.5 | 19.5 | 22.5 | 25.5 | 28.5 | 31.5 | 13.5 | 16.5 | 19.5 | 22.5 | 25.5 | 28.5 | 31.5 | ||
| 工作級別working class | A3 | A5 | A6 | |||||||||||||||||||||
| *大起升高度 Max Lift Height | 主 Primary | m | 20 | 20 | 20 | |||||||||||||||||||
| 副 Secondary | 22 | 22 | 22 | |||||||||||||||||||||
| 速度 speed | 起升 Lift | 主 Primary | m/min | 1.66 | 5.5 | 6.87 | ||||||||||||||||||
| 副 Secondary | 6.74 | 9.23 | 9.23 | |||||||||||||||||||||
| 小車運行 handcart travel | 12.32 | 38.4 | 38.4 | |||||||||||||||||||||
| 大車運行 cart travel | 33.2 | 30.3 | 77.6 | 66.2 | 78.1 | 66.7 | ||||||||||||||||||
| 電動機 Motor | 起升 Lift | 主 Primary | type/kw | YZR200L-8Z/22 | YZR315M-10Z/85 | YZR355M-10/90 | ||||||||||||||||||
| 副 Secondary | YZR200L-8Z/22 | YZR250M1-8Z/35 | YZR250M1-8Z/35 | |||||||||||||||||||||
| 小車運行 handcart travel | YZR132M2-6/5 | YZR180L-8/13 | YZR180L-8/13 | |||||||||||||||||||||
| 大車運行 cart travel | YZR160L-8/11×2 | YZR255M-8/26×2 | YZR250M1-8/30×2 | |||||||||||||||||||||
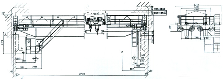
| 主要尺寸 (mm) Main Size | H | 3252 | 3252 | 3256 | 3260 | 3258 | 3262 | 3264 | 3252 | 3252 | 3256 | 3260 | 3258 | 3262 | 3264 | 3254 | 3254 | 3258 | 3262 | 3260 | 3264 | 3266 | ||
| H1 | 1318 | 1318 | 1322 | 1326 | 1324 | 1328 | 1330 | 1318 | 1318 | 1332 | 1326 | 1324 | 1328 | 1330 | 1320 | 1320 | 1324 | 1328 | 1326 | 1330 | 1332 | |||
| H2 | 398 | 538 | 542 | 546 | 844 | 848 | 850 | 398 | 538 | 542 | 546 | 844 | 848 | 850 | 400 | 540 | 544 | 548 | 846 | 850 | 852 | |||
| H3 | 2778 | 2918 | 2922 | 2926 | 3224 | 3228 | 3230 | 2780 | 2920 | 2924 | 2928 | 3226 | 3230 | 3232 | 2780 | 2920 | 2924 | 2928 | 3226 | 3230 | 3232 | |||
| H4 | 1588 | 1588 | 1584 | 1580 | 1582 | 1578 | 1576 | 1588 | 1588 | 1584 | 1580 | 1582 | 1578 | 1576 | 1586 | 1586 | 1582 | 1578 | 1580 | 1576 | 1574 | |||
| H0 | 0;50;100;150;200;250 | |||||||||||||||||||||||
| 重量 Weight | 小車運行 handcart travel | t | 24.0 | 27.7 | 28.3 | |||||||||||||||||||
| 總重 Total weight | 56.3 | 60.2 | 65.2 | 70.9 | 75.8 | 82.4 | 88.4 | 61.9 | 65.8 | 71.0 | 76.6 | 81.5 | 88.1 | 94.1 | 63.8 | 68.1 | 73.2 | 79.0 | 83.9 | 90.9 | 96.7 | |||
| *大輪壓 Max.Wheel Pressure | KN | 266 | 278 | 285 | 294 | 305 | 316 | 326 | 274 | 287 | 299 | 309 | 319 | 330 | 341 | 286 | 302 | 313 | 324 | 334 | 346 | 355 | ||
| 薦用鋼軌Steel track | QU100 | |||||||||||||||||||||||
| 電源Power Supply | 三相交流 3-Phase A.C. 50Hz 380V | |||||||||||||||||||||||
QD型75/20噸吊鉤雙梁橋式起重機的主鉤起重量為75噸、副鉤起重量為20噸,兩個鉤所吊工件總重不能大于75噸,主要由箱形橋架、卷揚式起重小車、大車運行機構和電氣控制系統組成,取物裝置是吊鉤,也叫行車。
主梁上面鋪設有軌道,供起重小車沿主梁方向作橫向移動。主梁與箱型端梁焊接而成,端梁中間布置有接頭,螺栓或銷軸連接,供橋架分拆運輸。
本行車的操作方式設有地面手柄、無線遙控和司機室三種操作形式。駕駛室有開式、閉式兩種,內有可調式座椅,底板鋪設絕緣墊,窗玻璃采用鋼化玻璃,可根據用戶要求配置冷暖空調、訊響器、對講機等物品。
起重機可配掛馬達抓斗、電磁吸盤等取物裝置,滿足吊運多種類型物料的需求。
起重機工作級別A3、A5、A6,也有A7,其中A3屬于慢速橋式起重機,適宜在工廠、倉庫及貨場等處作裝卸吊運工作。發電廠主汽機房用的也較多。





