河南礦山起重機械廠家生產的門式起重機、龍門吊產品簡介:這種的自重重,吊取貨物重、龐然大物,適合工作頻繁,講效率的作業場合,碼頭上用的比較多。它的起升機構是在起重小車上,卷揚式起重小車由卷筒、電機、減速機、制動器、電器組成,起重小車在雙主梁上運行。工作級別A5或者A6。耐用,壽命長,歡迎選購。
MGA型32/5-50/10噸吊鉤雙梁門式起重機參數: | t | 32/5 | 50/10 | ||||||||||
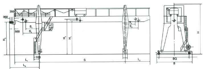
工作級別 working class | A5 | ||||||||||||
跨度 Span | S(m) | 18 | 22 | 26 | 30 | 35 | 18 | 22 | 26 | 30 | 35 | ||
起升高度(m) Lifting Height | 主 Primary | H1(m) | 10 | 12 | 10 | 12 | |||||||
副 Secondary | H2(m) | 10.73 | 12.73 | 10.918 | 12.918 | ||||||||
速度Speed | 起升 Lift | 主 Primary | m/min | 7.5 | 5.9 | ||||||||
副 Secondary | 19.7 | 13.2 | |||||||||||
大車運行 cart travel | 34 | 36 | |||||||||||
小車運行 handcart travel | 42.4 | 38.5 | |||||||||||
電動機總功率 Motor total power | KW | 99.3 | 117.3 | 126.5 | |||||||||
主要尺寸 (mm) Main Size | H | 14862 | 16962 | 15557 | 17657 | ||||||||
H3 | 11179 | 11079 | 11079 | 11679 | 11579 | 10786 | 10586 | 10386 | 10286 | 11986 | |||
L1 | 7740 | 8740 | 9740 | 7935 | 8935 | 9935 | |||||||
L2 | 7490 | 8490 | 9490 | 7725 | 8725 | 9725 | |||||||
L3 | 8990 | 9990 | 10990 | 9185 | 10185 | 11185 | |||||||
S1 | 5000 | 6000 | 7000 | 5000 | 6000 | 7000 | |||||||
S2 | |||||||||||||
S3 | 5980 | 6980 | 7980 | 6195 | 7195 | 8195 | |||||||
S4 | 4020 | 5020 | 6020 | 3805 | 4805 | 5805 | |||||||
B | 10745 | 11245 | 10940 | 11440 | |||||||||
BQ | 8000 | 8500 | 8000 | 8500 | |||||||||
*大輪壓 Max.Wheel Pressure | KN | 245 | 258 | 276 | 286 | 302 | 356 | 356 | 377 | 409 | 426 | ||
薦用鋼軌 Steel track | 43kg/m QU70 | ||||||||||||
電 源 Power Supply | 三相交流 3-Phase A.C 50HZ 380V | ||||||||||||


起重量 Lifting Weight



