礦山起重機廠家制造銷售的門式起重機、龍門吊產品簡介:
MH型MH型3~10噸電動葫蘆門式起重機(全花架式),這種整機自重輕,價格比對應全包箱的電動葫蘆門式起重機來說,價格低,經濟實用。用途較為廣泛,個體工商戶用的很多。歡迎選購。

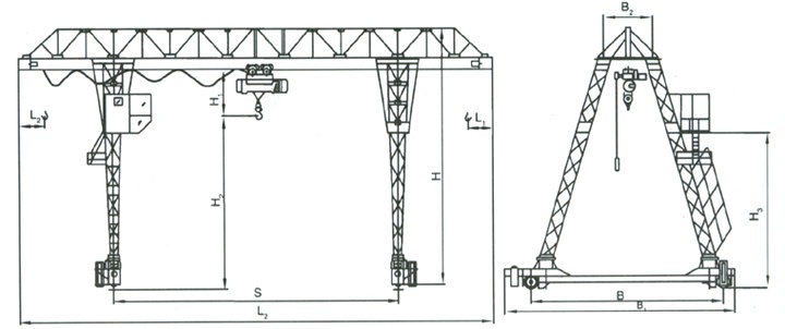
MH型3~10噸電動葫蘆門式起重機(全花架式)

Lifting weight 起重量 | 跨度 Span | 起升高度 Lift Height | 懸臂長度 hanging arm length | 工作制度 working system | 電動葫蘆 Electric Hoist | 運行機構 Travel Mechanism | 薦用軌道型號 Special track type | 主要尺寸 (mm) Main Size | 備注 Note | |||||||||||||
S | H2 | 型號 Type | 起升速度 Lift speed | 運行速度 Travel speed
| 運行速度 Travel speed | 減速機 Decelerator | 電動機 Motor | 總長度 Total length | 吊鉤*限位置 Hook Limit Position | 操縱室至軌道面距離 Distance Between Operation Room and Track | 輪距Wheel Distance | 橫梁 Crossbeam | 支腿上部中心 Center Distance for suport upper pat | 總高 Total Height | ||||||||
型號 type | 功率 power | |||||||||||||||||||||
噸 T | 米 Meter | 米/分 Meter/s | 千瓦 kw | L2 | H1 | i1 | i2 | H3 | B | B1 | B2 | H | ||||||||||
3 | 10 | 6 | 3 | A5 | CD1;MD1 | 8 ; 8/0.8 | 20(30)
| 30 | ZSC400-Ⅲ3/4/37.33 | YZR132M2-6 | 4×2 | P43 | 16 | 1160 | 600 | 650 | 4500 | 5644 | 6240 | 1400 | 9120 | 不同噸位與跨度及不同起升高度的總重和輪壓見隨機圖紙 |
5 | 10 | 3 | 16 | |||||||||||||||||||
10 |
| 6 9 10 | 3 | 7 ; 7/0.7 | ZSC600-Ⅳ3/4/46.7 | YZR160M1-6 | 6.3×2 | 16 | 1600 | 700 | 750 | 5190 | 5830 | 1450 | 10550 | |||||||





